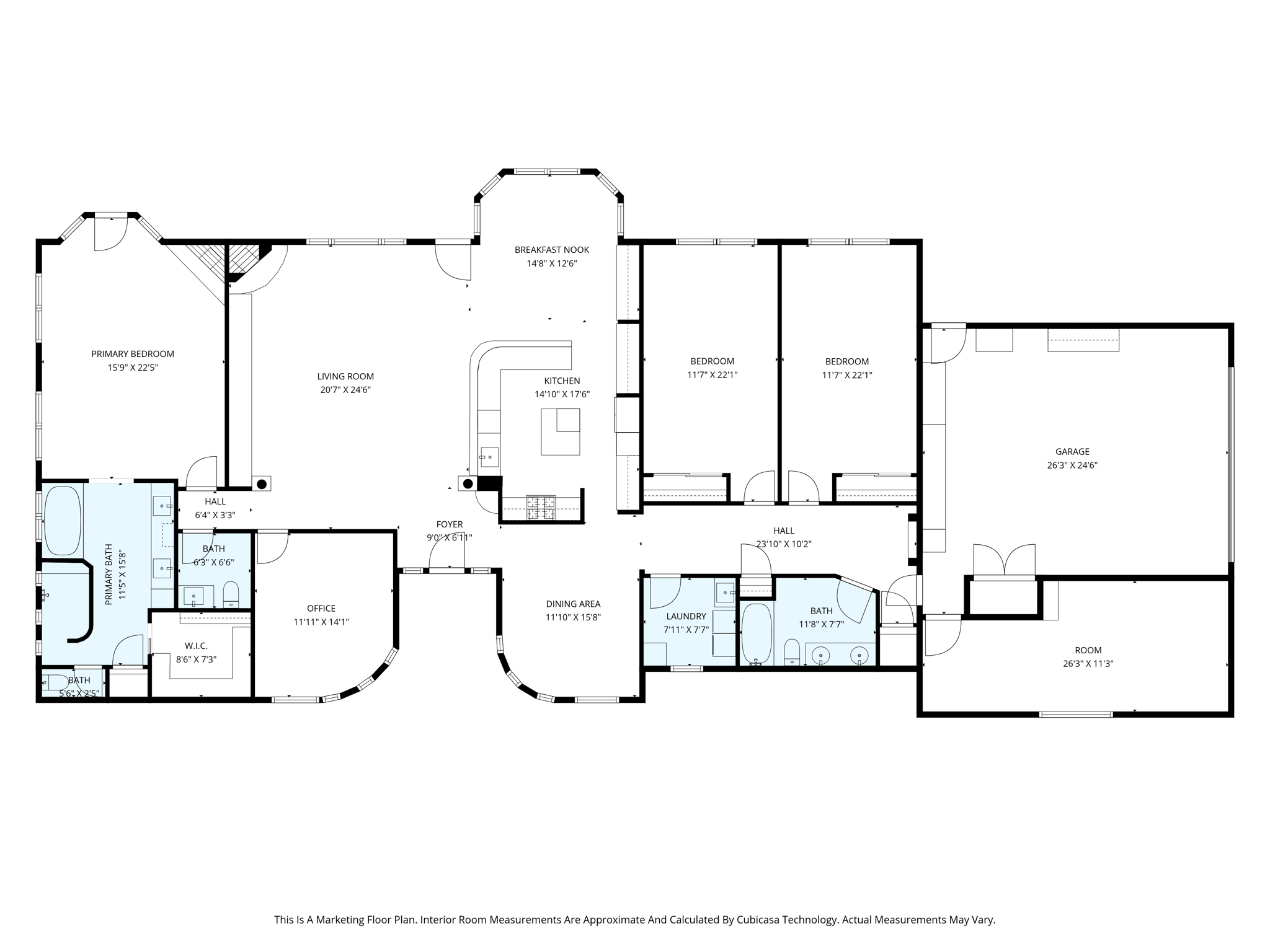
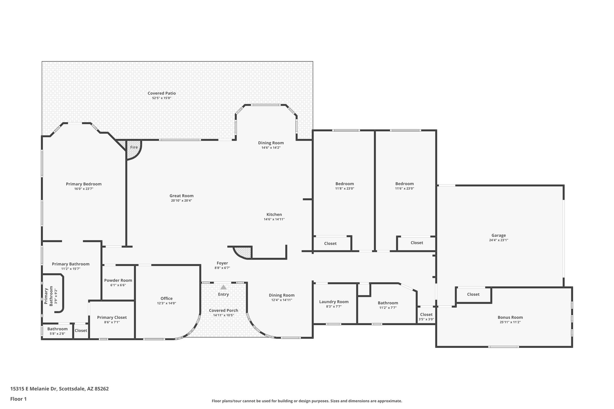
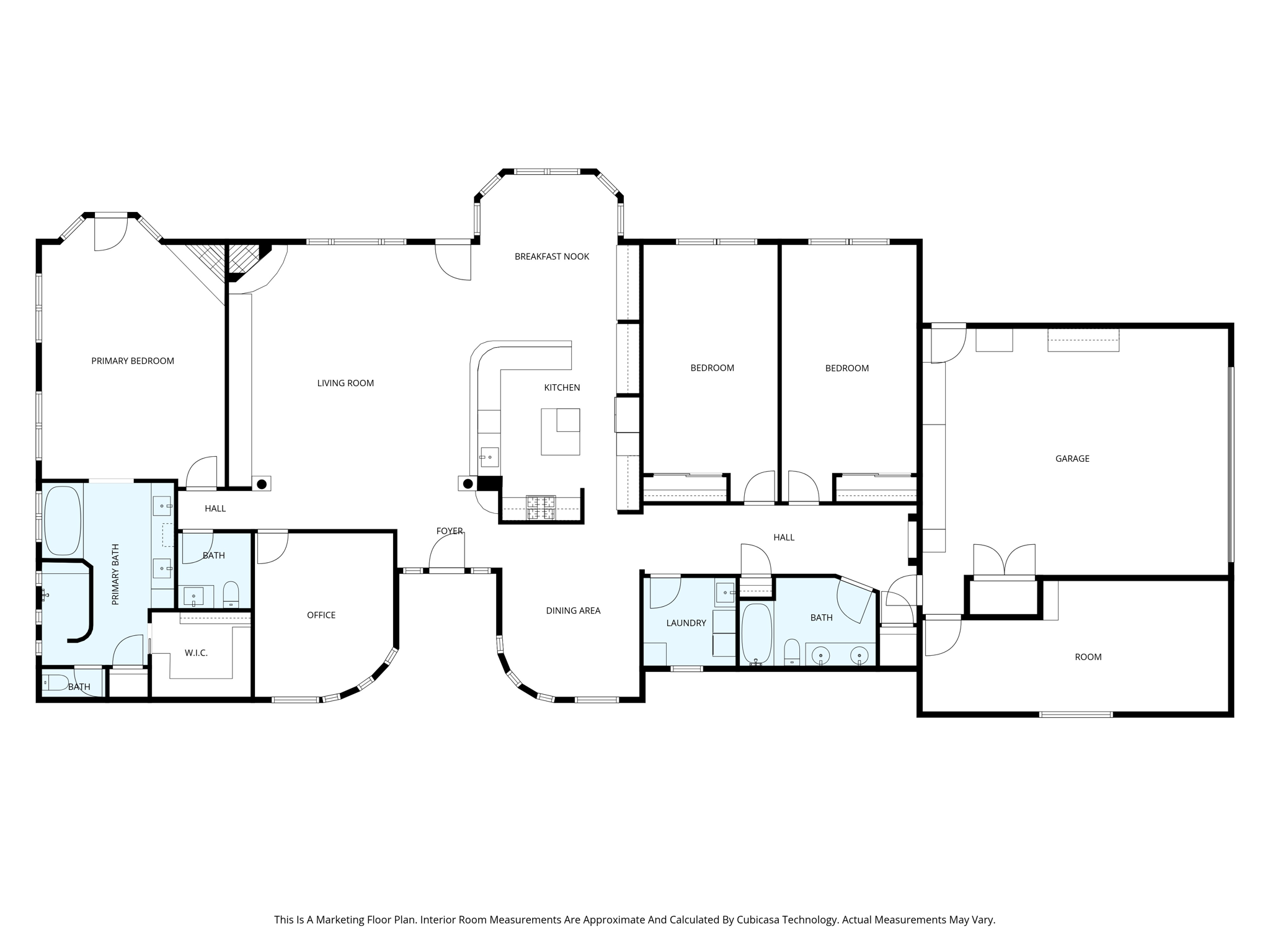
Details

This stunning contractor-owned estate blends refined craftsmanship, luxury finishes, and breathtaking Arizona mountain views. The professionally designed backyard is a true resort retreat, featuring a 2023-built Heated 40’ lap pool with baja shelf, spa, water feature, fire bowls, travertine decking, custom landscaping, and low-level lighting. Enjoy panoramic views of Four Peaks, the Tonto National Forest, Granite Mountain, and Weaver’s Needle from the expansive 52’ x 15’ covered patio, complete with a Trex footbridge, pergola, Philips Hue lighting, and fully fenced yard with critter fencing. A large open section of the yard allows room for horses, play areas, or future expansion.

Inside, luxury and function meet. The chef’s kitchen offers seating for 12, Viking professional stainless appliances, Bosch dishwasher, alderwood cabinetry, skylights, and premium lighting. Soaring 9’ and 12’ ceilings, 8’ solid knotty alder doors, custom shutters, and travertine flooring elevate every space. The primary suite features new lighting, dual sinks, Toto toilet, automated blind, and upgraded shower fixtures. Additional highlights include Cat 5 wiring, built-in vacuum system, security system, oversized air-conditioned garage with California Closet cabinetry, polished travertine flooring, new carpeting in all bedrooms, and new ceiling fans throughout. A high-volume metered shared well with generator outlet completes this extraordinary offering — a rare opportunity to own a luxury desert retreat with unmatched views and upgrades.

  • $1,289,000
  • 4 Bedrooms
  • 2.5 Bathrooms
  • 3,326 Sq/ft
  • Lot 1.25 Acres
  • 2 Parking Spots
  • Built in 2005
  • MLS: 6968548

Images

Floor Plans

Videos

3D Tour