5750 W T Ryan Ln Phoenix AZ 85339
Toggle Navigation
Images
Downloads
Floor Plans
Interactive
Map
Previous Photo
Next Photo
Images
Slideshow
Photo Grid
Hide
Previous
Next
Show more
Downloads
Home Report for 5570 W T Ryan Ln, Phoenix, AZ 85339.pdf
(1.59 MB)
Print-Ready Floor Plans for 5570 W T Ryan Ln, Phoenix, AZ 85339.pdf
(1.39 MB)
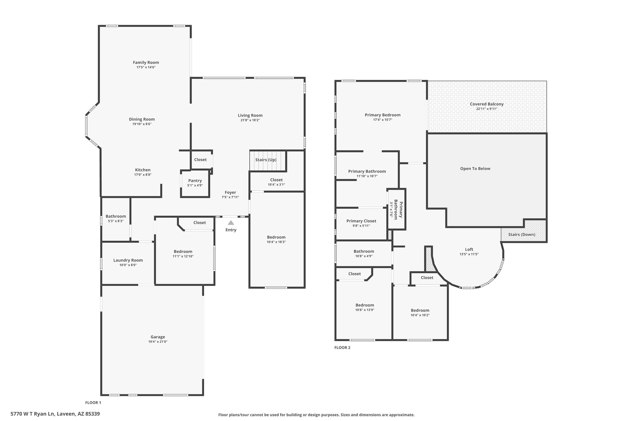
Floor Plans
All Floors Dimensions
1st Floor Dimensions
2nd Floor Dimensions
All Floors
1st Floor
2nd Floor
Floor 1
Floor 2
Combined
Slideshow
Photo Grid
Hide
Previous
Next
Interactive Content