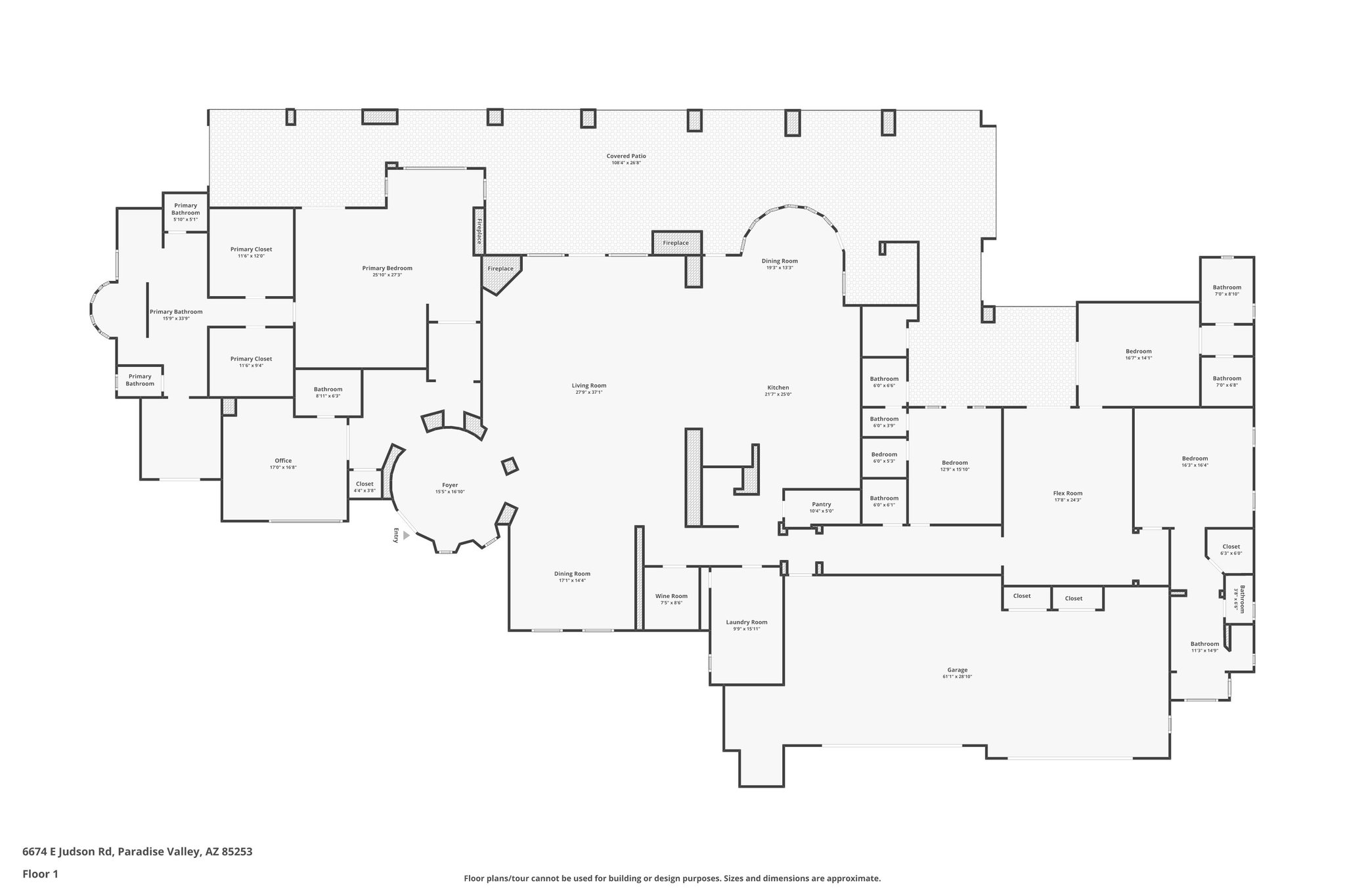
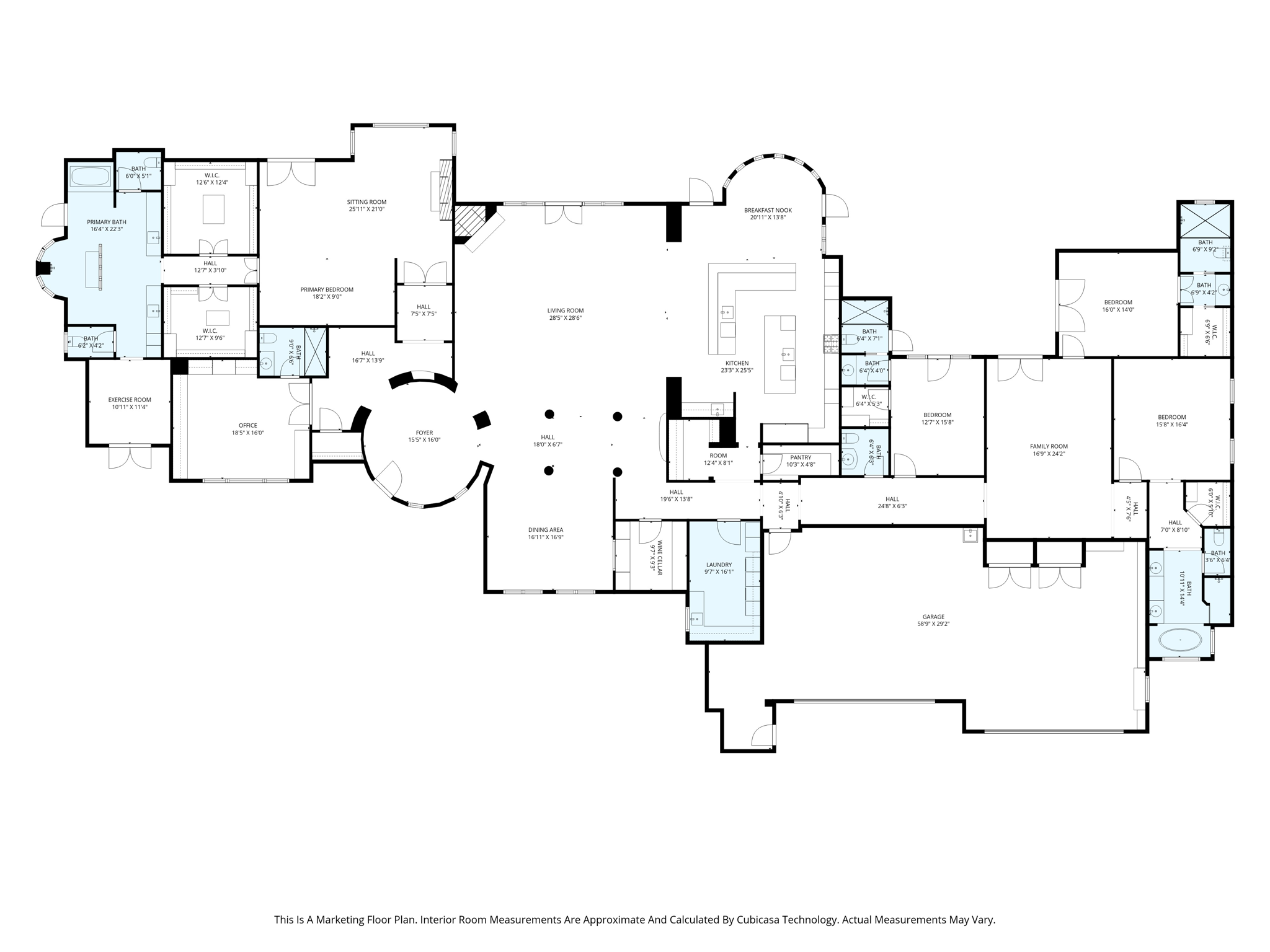
6674 E Judson Rd Paradise Valley AZ 85253
Toggle Navigation
Images
Floor Plans
Videos
Interactive Media
Downloads
Map
Previous Photo
Next Photo
Images
Slideshow
Photo Grid
Hide
Previous
Next
Show more
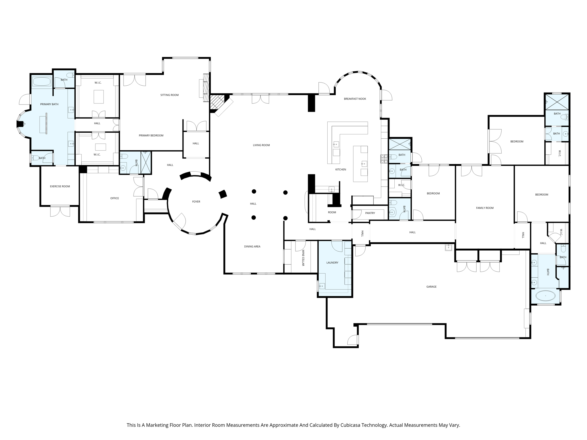
Floor Plans
3D
With Dimensions
Without Dimensions
Floor 1
Slideshow
Photo Grid
Hide
Previous
Next
Videos
Property Tour
Parallax Slideshow
Classic Slideshow
Architectural Rendered Video
Reel
Vertical Teaser
Template Slideshow (Vertical)
Template Slideshow (Square)
Interactive Media
Interactive Floor Plan
3DH Tour #1
Downloads
Home Report for 6674 E Judson Rd, Paradise Valley, AZ 85253.pdf
(3.69 MB)
Print-Ready Floor Plans for 6674 E Judson Rd, Paradise Valley, AZ 85253.pdf
(724.17 KB)
GLA Report for 6674 E Judson Rd, Paradise Valley, AZ 85253.pdf
(229.76 KB)